FOR SALE: Parkside home in Cedar Park's Buttercup Creek neighborhood
Tucked on a cul de sac in Cedar Park’s Buttercup Creek neighborhood, this two-story red brick home makes a strong first impression with its classically-styled exterior, sprawling yard, and convenience to outdoor spaces and local attractions.
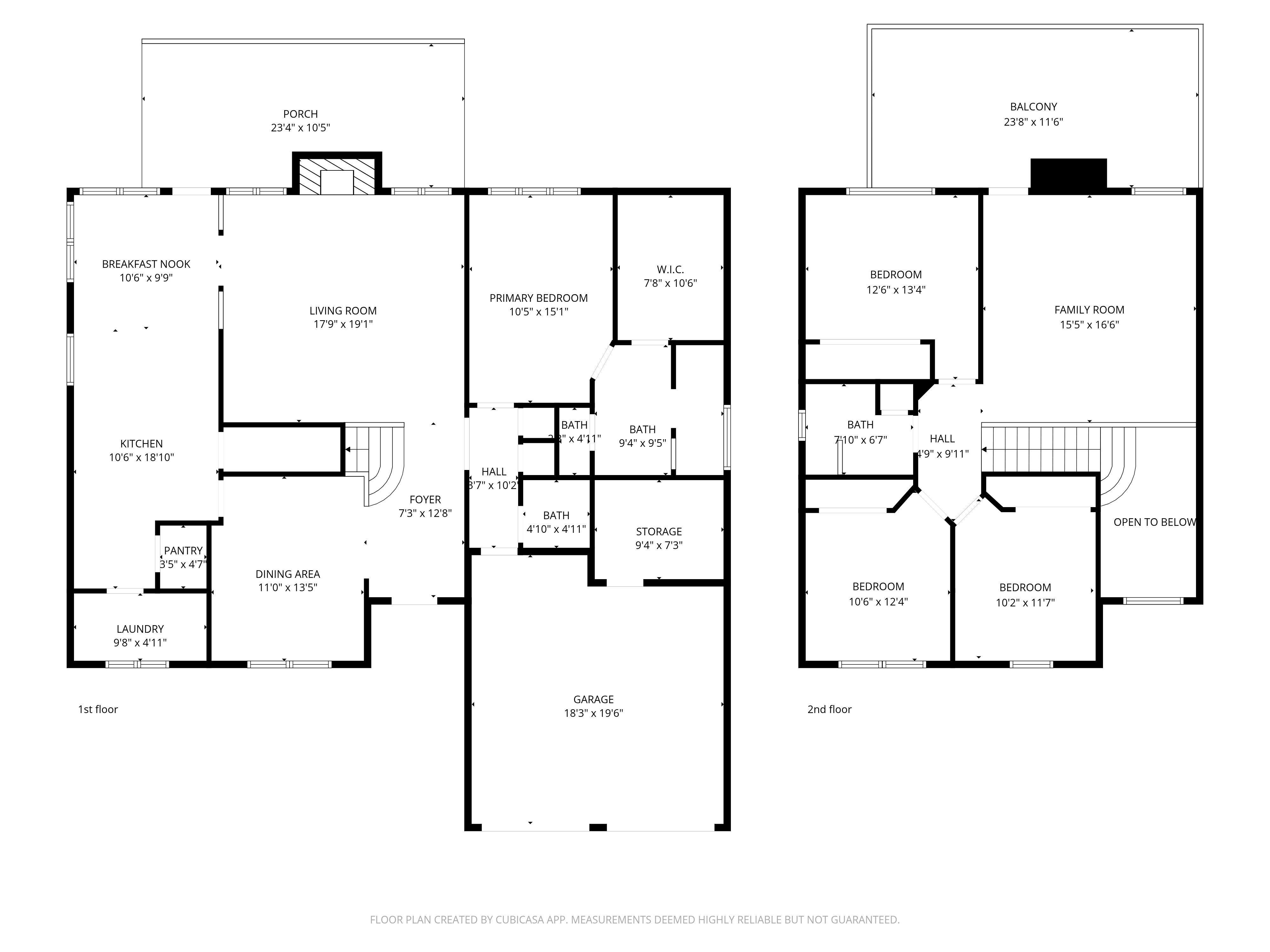
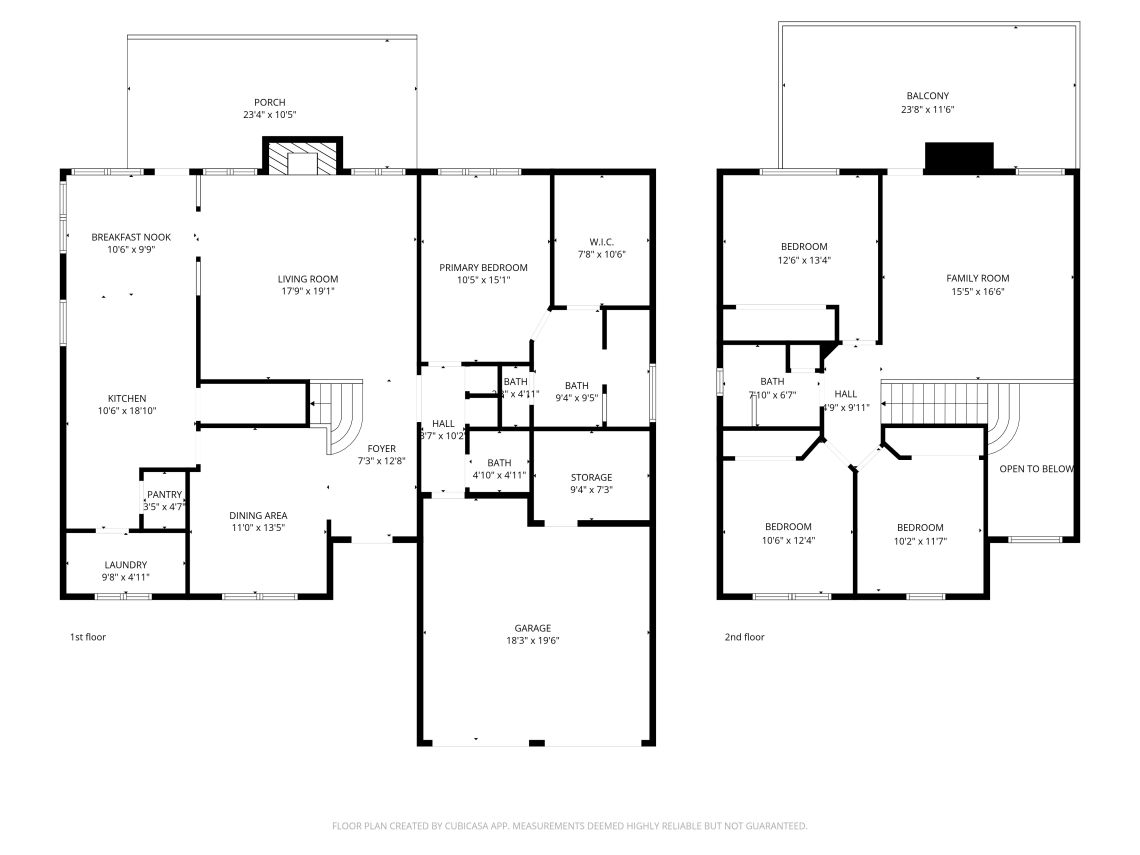
Inside, the home’s comfortable layout is thoughtfully spread across two floors to maximize privacy while also optimizing easy movement between the most-used rooms in the house. The living room anchors the downstairs with an impressive painted brick fireplace and a wall of windows that frames the backyard. The open floor plan conveniently flows from the living room to the kitchen, informal breakfast nook, or the formal dining.
The kitchen is highly efficient without sacrificing style. Dark cabinets are updated with on-trend gold hardware and topped with granite countertops. There’s abundant counter space for meal prep, lots of cabinets for ample storage, and two separate pantries so that everything has its place. An adjoining laundry room with a light and bright window makes it easy to pop in a load of laundry while making dinner. You can grab a quick bite at the eat-in bar or have a casual meal in the breakfast nook while you watch the squirrels play in the trees out back. A formal dining room sits just off the kitchen for the nights you want to slow down and set the table. Whether it’s a laid-back meal at home or holiday dinner in the dining room, the flexible downstairs layout effortlessly adapts to your needs.
In addition to the communal spaces, the downstairs also includes the primary suite where you can unwind separate and apart from the secondary bedrooms. A large window seat overlooks the private backyard, but it's the primary bath where you'll want to spend all of your time. The walk-in shower with window seat is wrapped in floor-to-ceiling travertine tile and drenched in soft natural light. The double vanity with granite counters is roomy enough to share, and a large walk-in closet has abundant space for all your things. It’s like visiting your own personal spa as you get ready every day.
Head upstairs and you'll find three additional bedrooms with carpeted floors, a full bath with tub, and a generous bonus room with built-in bookshelves that works equally well as a playroom, home office, or second living area. Step out onto the second-floor balcony and you’ll enjoy a birds-eye view of the treetops and expansive backyard.
The spacious .28 acre backyard is a wonderful extension of the home. A covered patio with ceiling fans and string lights sits just off the kitchen and runs along the back of the house. It’s the perfect setting for enjoying your morning coffee or unwinding at the end of the day. Whether you’re an experienced gardener or a novice, you’ll appreciate the cute greenhouse with electricity. A separate storage shed provides extra storage for tools and more. The fully-fenced yard is shaded by several mature trees and offers plenty of room for the pets to play, with space left for the addition of a swingset or even a swimming pool if you desire.
Better yet, the yard has a private gate to a park trail that leads Janet Bartles Park where you can enjoy the open fields, tennis courts, basketball courts, sand volleyball courts, and playgrounds. The Park connects to Buttercup Creek Cave Preserve where you can explore miles of trails. Whether you're hosting, gardening, or just letting the dog burn off some energy, the large backyard and adjacent park can’t be beat.
Numerous updates make this home move-in ready so you can settle right in. The interior was painted in 2025, a new roof was installed in 2022, and there’s an irrigation system in the front and backyard that will help keep the yard looking good all year round. The two-car garage features epoxy floors and built-in cabinets, and there’s room for additional vehicles in the wide concrete driveway. Additional storage is available in the attic or store room located off the garage.
Not only is the home itself ideal, but it is also conveniently located near popular restaurants, the local library and farmer's market, and music venues. Imagine grabbing coffee at Summer Moon and breakfast tacos at Nathalie’s before taking the Lakeline train into Austin for work, cycling on the Brushy Creek Trailhead in the evening before heading out to have dinner at The Grove before catching some live music at the Haute Spot. With easy access to Highways 183 and 45, this four bedroom home is close to everything you want and need. Imagine having these choices within 15 minutes of home:
Janet Bartles Park (just beyond your back gate)
Nathalie’s Donuts (5 minute drive)
Cedar Park Library (6 minute drive)
Summer Moon Coffee (6 minute drive)
Dough It Up for pizza & Italian (6 minute drive)
Stiles Switch BBQ (7 minute drive)
Black Swan Yoga (7 minute drive)
Whitestone Brewery (8 minute drive)
Instill Coffee (8 minute drive)
Flow Yoga (9 minute drive)
HEB Grocery (9 minute Drive)
The Grove (9 minute drive)
Hop Doddy (9 minute drive)
Core Power (10 minute drive)
Haute Spot (11 minute drive)
Cycle Bar (11 minute drive)
Orange Theory Fitness (12 minute drive)
Costco (12 minute drive)
HEB Center Venue (15 minute drive)
Whole Foods (15 minute drive)
Yoga Six (15 minute drive)
Trader Joe’s (coming in 2027)
Texas Farmer’s Market at Bell District (1.5 mile walk)
This inviting home is the Buttercup Creek opportunity you’ve been waiting for. Reach out to Paul Reddam, Realtor, to arrange a showing.
See it for yourself at our upcoming open houses on May 2 & 3
At 403 Paint Brush Circle, you can enjoy modern comforts, an expansive lot on a cul de sace, and easy access to outdoor activities.
We invite you to imagine what life would be like living in your new home in Buttercup Creek. Grab a friend or neighbor and come explore the possibilities at one of our open houses. The home will be open to tour from 1 - 3 pm on Saturday, May 2nd and Sunday, May 3rd.
We look forward to seeing you there or feel free to reach out to arrange a private showing.
Not quite right? Check out these other nearby homes for sale.
Other nearby properties for sale
Peruse this collection of other homes for sale in Cedar Park. See something you like? Our team is ready to answer any questions, show you properties of interest, and guide you through the purchase process.
Explore Northwest Hills >>
Get notified of new listings automatically.
As your home search heats up, we can also simplify the process by setting up a custom home search that matches your exact house-hunting criteria. This will allow you to get an automatic email update any time new listings come to the market that meet your parameters. Reach out if you'd like us to set that up for you.
We respect your inbox and your privacy. You may unsubscribe at any time.

.jpg)
Recommended Reads